acengenhariaearquitetura.com.br

Conheça Nossos Projetos

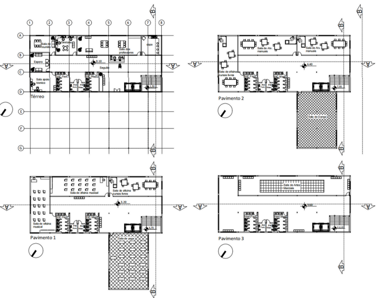
PROJETO EQUIPAMENTO CENTRO CULTURAL

Copyright 2025 © AC Engenharia e Arquitetura · Todos os direitos reservados.
Consulte os Termos e Políticas de uso de acordo com a Lei Geral de Proteção de Dados (LGPD)